Odkrywki fundamentów kamienicy, ul. Miodowa 19, Kraków
DANE KONSTRUKCYJNE:
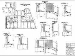
Przedmiotem opracowania było określenie geometrii, materiału oraz poziomu posadowienia fundamentów kamienicy zlokalizowanej przy ul. Miodowej 19 w Krakowie w kontekście nadbudowy.
Przedmiotem opracowania było określenie geometrii, materiału oraz poziomu posadowienia fundamentów kamienicy zlokalizowanej przy ul. Miodowej 19 w Krakowie w kontekście nadbudowy.
AUTORZY
mgr inż. Piotr Wolarek
mgr inż. Łukasz Zatorowski
|
|
|
|
|